2025惠州九颂沃华·和禧户型配套 价值分析报告
整体概述
九颂沃华·和禧楼盘位于惠州惠城演达大道,由九颂山河集团,沃华集团精心打造,项目正持续推售中,最新参考价格为12000元/平方米,通过对项目价格、项目户型、交通配套、教育配套、生活配套、小区规划等维度进行分析,九颂沃华·和禧楼盘价值评分为9.3分。
当前,九颂沃华·和禧价格为12000.00元/平方米,较周边三公里在售普通住宅项目均价低5.7%,九颂沃华·和禧项目价格具备一定优势。
楼盘价格
12000元/㎡
周边新房均价
12730元/㎡
周边二手房均价
10052元/㎡
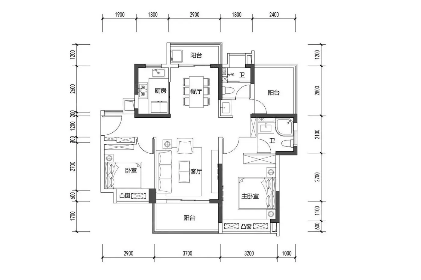
2室2厅1卫九颂沃华·和禧 平层户型·建面/86㎡
在售 南北通透全明格局户型方正采光充足双阳台
2室2厅2卫九颂沃华·和禧 平层户型·建面/96㎡
在售 南北通透全明格局采光充足主卧朝南主卧带卫主卧套间L型厨房双阳台
2室2厅2卫九颂沃华·和禧 平层户型·建面/98㎡
在售 南北通透全明格局户型方正采光充足U型厨房双阳台
2室2厅2卫九颂沃华·和禧 平层户型·建面/99㎡
待售 南北通透全明格局户型方正采光充足U型厨房
查看全部户型
周边直线1km内有12个公交站,距离最近的冰塘路口站仅有348m,周边公共交通极为便捷。
直线3km范围内有65个幼儿园;17个小学,如惠州市惠城区南实小学、南坛小学实验学校、马庄小学、金山小学、惠城区惠兴小学等;8个中学,如惠州市南山学校、惠州市实验中学、惠州市第五中学、河南岸中学、惠州市凌田外国语学校等。
注:上述学校相关信息仅为参考,不作为入学依据。具体入学政策可咨询您的专属经纪人
楼盘直线3km范围内有3个一级及以上医院。其中惠城区中医医院距离楼盘2.9km,为医疗需求提供了保障。
楼盘周边3km范围内有19个商场,包括天虹商场(三环瑞峰店)、惠州印象城、方直FUNSTAR天地、港惠购物中心等购物中心,商业配套成熟,完全可以满足日常购物需求。
楼盘周边生态环境优越,周边3km范围内有41个公园,距离最近的仅260m,非常方便日常休闲使用。
- 容积率
3.50
- 总户数
311
- 绿化率
30%
- 车位匹配
共333个
- 楼栋数
2
- 物业费
- 物业公司
惠州市万科物业服务有限公司
- 项目价格
8.8 - 项目户型
9.5 - 交通配套
10 - 教育配套
10 - 生活配套
10 - 小区规划
8
- 免责声明: 1.数据来源:房天下Fang.com,CREIS中指数据,中指▪项目云。 2.中指·楼盘价值评分是基于大数据对楼盘品质及周边配套情况进行全面测评得到的分数,满分为10分。评分体系包含项目价格、项目户型、区位交通、教育配套、生活配套、小区规划六大维度,覆盖二十余项具体指标。评价结果仅供参考,不作为交易依据使用。 3.文中楼盘信息均来自于项目开发商,价格受市场行情影响可能存在波动,最终价格及其他信息均以政府登记备案及项目开发商售楼处为准。 4.文中的距离信息均来自于百度地图测距,与实际情况可能略有差异,仅供参考。 5.因时间、市场、政策等会发生变化,文中信息仅供参考,不作为交易依据使用。 6.文中所有图片均有版权,如需转载请注明来源。
特别鸣谢

中指数据
楼盘概述:九颂沃华·和禧,楼盘地址为,想了解更多有关九颂沃华·和禧的房价、户型、产权年限、物业费、开发商、售楼电话、绿化率、周边配套等全方位楼盘信息,请持续关注九颂沃华·和禧楼盘!